Kauf

AKTIONSHAUS: Küche inklusive (bis 30.04.2026) und provisionsfrei vom Bauträger!
91625, Schnelldorf
Kaufpreis 449.000 €
Das Grundstück liegt im nordwestlichen Teil von Erlangen am Frankenschnellweg. Es sind 5 Fahr- minuten zur Autobahn A3. Das Grundstück ist umgeben von urbaner Bebauung. Wohnen, Hochschule, Einzelhandel und Büros. Eine Bushaltestelle befindet sich unweit des Grundstücks.
In wenigen Gehminuten ist man an der Universität Erlangen oder auf dem
Marktplatz und in der Fußgängerzone.
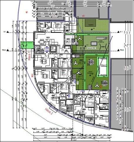
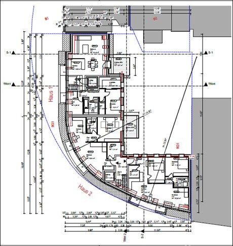
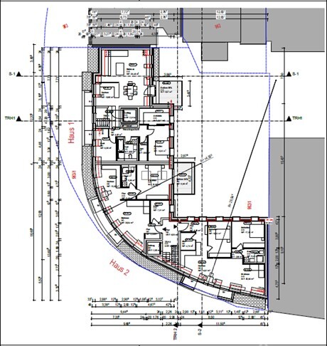
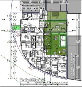
Das Grundstück ist derzeit an mehrere Parteien vermietet. Die Mietverträge laufen auf unbestimmte Zeit und sind mit der jeweils vereinbarten Frist kündbar.


